
About This Home
Located in the heart of Willow Glen, this modern farmhouse residence offers a refined interpretation of contemporary luxury living. Expansive open interiors, abundant natural light, and carefully selected materials create an atmosphere of understated elegance and warmth.
Designed for elevated everyday living, the home features smart automation, energy-efficient systems, and premium finishes throughout. Ideal for discerning homeowners, it delivers a seamless balance of sophistication, comfort, and timeless design.
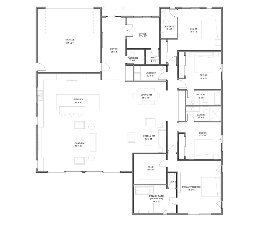
Floor Plan

© 2025 All rights reserved. Floor plans, materials, and specifications are subject to change without notice. Square footage may vary based on plan elevations and exterior materials. Certain features shown or illustrated are optional and may incur additional costs. All dimensions are approximate, and images are artist renderings. Detailed home drawings and specifications will be provided to each customer in their Building Agreement. All Ritz Builders® floor plans and designs are protected by copyright. All rights reserved and strictly enforced.
Experience your dream home before it’s built.
Our interactive 3D tour lets you walk through every corner, view layouts in detail, and feel the space come alive- all with a single click.
Schedule A Visit
To schedule a visit, contact:
Frequently Asked Questions
Find everything you need to know about this project and how Ritz Builders brought it to life.
Yes. The Kiner Residence at 1516 Kiner Ave, San Jose, CA 95125 is currently offered for $3,995,000 as a brand-new luxury home by Ritz Builders.
Yes. The Kiner Residence is a brand-new luxury home by Ritz Builders located in the Willow Glen neighborhood of San Jose.
The Kiner Residence offers 3,345 square feet of living area.
The Kiner Residence includes 5 bedrooms and 5 bathrooms.
Yes. The Kiner Residence is a single-story home, offering a layout designed for comfortable and efficient everyday living.
The home is a modern farmhouse with open interiors, abundant natural light, carefully selected materials, premium finishes, smart automation, and energy-efficient systems.
The Kiner Residence includes a 2-car garage.
Yes. Ritz Builders offers an interactive 3D virtual tour so you can review the layout before completion. You can also schedule a consultation through the Ritz Builders office in Cupertino.
The Kiner Residence is estimated to be completed in approximately 4 to 6 weeks. For the most up-to-date construction timing, contact Ritz Builders directly.
Yes. Ritz Builders also offers custom home design-build services in Willow Glen and San Jose for clients seeking a different layout, architectural style, or project approach.
To schedule a consultation or request more information, contact Ritz Builders at (669) 800-9012 or info@ritzbuilders.com.







